DEDeutschland Flagge
Kontaktieren Sie uns: 06203-9542980

Daten auf einen Blick

Ort: Schriesheim
Kaufpreis: 330.000,00 €
Provision für Käufer: 3,57 % inkl. MwSt.
Baujahr: 1971
Heizung: Öl
   
Objektart: Eigentumswohnung
Wohnfläche: ca. 95,8 m²
Zimmer: 4
Anteilige Grundstücksgröße: 129,6 m²
   
Besonderheiten:  
▸   sehr gute Lage  
▸   Sonnenbalkon  
▸   Kellerabteil  
▸   Stellplatz  
▸   separate Wohnung im DG  

 

Charmante Wohnung in Schriesheims bester Lage mit Sonnenbalkon

Die angebotene Wohnung befindet sich in einem gepflegten Mehrfamilienhaus aus dem Baujahr 1971 mit insgesamt nur 6 Wohneinheiten. Das Haus steht auf einem ca. 614 m² großen Grundstück und ist voll unterkellert. Ein kleiner Garten auf der Rückseite steht den Bewohnern zur gemeinschaftlichen Nutzung zur Verfügung. Die Immobilie wird von einer Hausverwaltung betreut; ein Hausmeister- sowie Reinigungsservice sind vorhanden. Eine 2012 installierte Solarthermieanlage unterstützt zudem die Warmwasseraufbereitung.

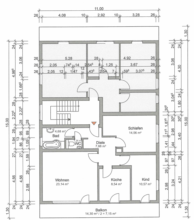
Die gesamte Wohnfläche beträgt ca. 96 m² und verteilt sich auf zwei baulich getrennte Wohnbereiche im 1. Obergeschoss und im Dachgeschoss, die rechtlich zu einer Einheit zusammengefasst sind.

Die Hauptwohnung im 1. Obergeschoss umfasst ca. 78 m² und bietet drei gut geschnittene Zimmer, eine Küche, ein helles Tageslichtbad mit Badewanne und Duschbereich sowie ein separates Gäste-WC und einen praktischen Abstellraum. Das großzügige, lichtdurchflutete Wohnzimmer bildet das Herzstück der Wohnung und bietet Zugang zum großen Südbalkon. Dank seiner optimalen Ausrichtung lädt dieser zu sonnigen Stunden ein und erweitert den Wohnraum in den Sommermonaten ideal. Auch von der Küche sowie einem Schlafzimmer besteht Zugang zum Balkon. Im Jahr 2022 wurden in diesem Bereich umfangreiche Renovierungen durchgeführt.

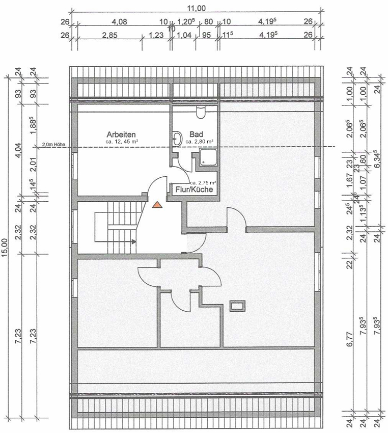
Der separate Wohnbereich im Dachgeschoss umfasst ca. 18 m² und verfügt über ein gemütliches Zimmer, eine Kochnische sowie ein eigenes Tageslichtbad mit Dusche und WC. Dieser Bereich wurde zuletzt nicht renoviert und vorwiegend als Homeoffice oder Spielzimmer genutzt. Aufgrund der vorhandenen Ausstattung eignet er sich ideal als Gästezimmer, Arbeitsbereich oder Rückzugsort.

Abgerundet wird das Angebot durch einen eigenen Kellerraum sowie einen überdachten Stellplatz hinter dem Haus.

Objekt-ID 2140, ETW Schriesheim, Balkon, Ostblick

Die Weinstadt Schriesheim zählt mit seinen knapp 15.000 Einwohnern zu einem der schönsten Orte an der Bergstraße. Sein historischer Kern mit den kleinen Gässchen in der Altstadt, seine ganz besondere Lage am Fuße der Weinberge, die vielen kleinen und größeren Feste und nicht zuletzt seine Weine, machen diesen Ort so charmant. Darüber hinaus ist Schriesheim für seine Kontraste bekannt. Findet man auf dem Branich modernste Architektur und imposante Gebäude, so findet man in der Altstadt eher historische Gebäude und eine belebte Innenstadt. Des Nachts erfreut die atmosphärisch illuminierte Strahlenburg seine Einwohner.

Für Sportbegeisterte, Mountainbiker, Naturliebhaber, Kletterer und auch Drachenflieger ist Schriesheim ein idealer Ausgangspunkt. Das Vereinsleben und die Geselligkeit werden groß geschrieben. Auch die gesamte Umgebung von Schriesheim trägt zur Attraktivität des Ortes bei. So lädt die Nähe des Odenwaldes auf der einen Seite zu ausgeprägten Wanderungen ein und darüber hinaus locken Heidelberg und Weinheim als Ausflugsziele ein breites Publikum an. In Schriesheim gibt es darüber hinaus ausreichend Kindergärten, Grund- Haupt- und Realschule sowie zwei Gymnasien.

Schriesheim verfügt über eine perfekte Verkehrsanbindung entlang der Bergstraße und einen direkten Autobahnzugang. In Schriesheim lässt sich auf angenehmste Weise Arbeiten und Wohnen verbinden.

Virtuelles Home Staging

Home Office vorher Home Office nachher

Gerne schicken wir Ihnen ein ausführliches Exposé zu.

Fotos: ©  Kamil Trojan / www.trojandesign.de

Geldwäsche:
Als Immobilienmakler ist hölzel & friends GmbH nach § 2 Abs. 1 Nr. 14 und § 10 Abs. 3 Geldwäschegesetz (GwG) dazu verpflichtet, bei der Begründung einer Geschäftsbeziehung die Identität des Vertragspartners festzustellen und zu überprüfen. Es ist verpflichtend, dass wir nach § 11 GwG die relevanten Daten Ihres Personalausweises festhalten, wenn Sie als natürliche Person handeln. Bei einer juristischen Person benötigen wir eine Kopie des Handelsregisterauszugs. Das Geldwäschegesetz sieht vor, dass der Makler die Kopien fünf Jahre aufbewahren muss.

Bedingungen:
Unsere Angebote sind freibleibend und erfolgen auf der Basis der ortsüblichen Maklerbedingungen. Ein Zwischenverkauf bleibt vorbehalten.
Alle objektbezogenen Angaben wurden vom Verkäufer bereitgestellt. Die hölzel & friends GmbH übernimmt hierfür keine Gewähr.

Courtage
Die Courtage entfällt sowohl für Käufer als auch Verkäufer.
Die Courtage wird mit notariellem Kaufvertragsabschluss verdient und fällig.

Anja Hölzel, Immobilienmakler Rhein-Neckar-Kreis, Kaufimmobilien

Anja Hölzel freut sich auf Ihre Anfrage. Gerne senden wir Ihnen weitere Informationen zu.

Name*
E-Mail*
Telefon

Copyright 2026. All Rights Reserved.

Einstellungen gespeichert
Datenschutzeinstellungen

Cookies erleichtern die Bereitstellung unserer Dienste. Mit der Nutzung unserer Website erklären Sie sich damit einverstanden, dass wir Cookies verwenden. Weiterführende Informationen erhalten Sie in unserer Datenschutzerklärung.

Technisch erforderliche Cookies werden immer geladen.
You are using an outdated browser. The website may not be displayed correctly.